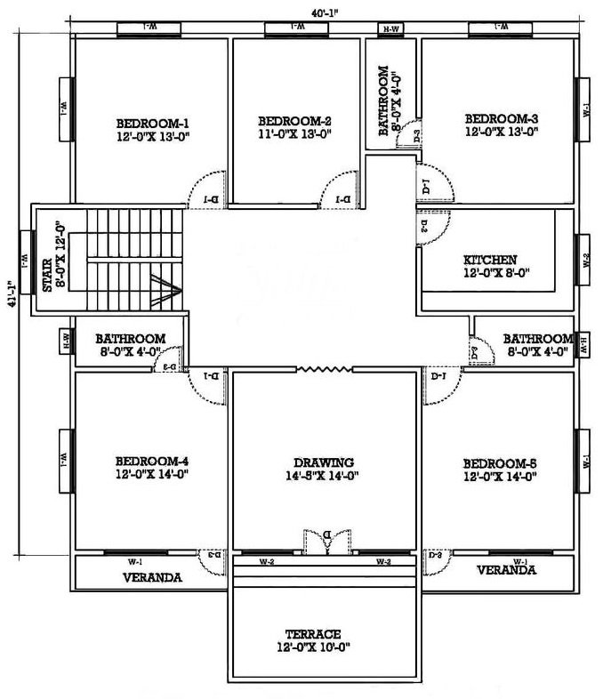
40.1 x 41.1 Feet 2D Layout Plan

Reviews (0)
0 0 284
599
1
Share: 

No reviews found!

No comments found for this product. Be the first to comment!

This site uses cookies. By continuing to browse the site, you are agreeing to our use of cookies.